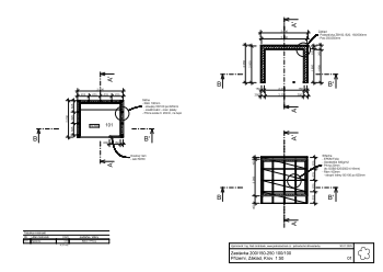
Zastávka 200/150-250 100/100
Malá minimální autobusová zastávka. Dřevěná kce na 0,5m vysokém betonovém soklu ze ztraceného bednění.
Parametry stavby
Rozměry rámů šířka/výška-délka 200/150-250cm Plocha zastavěná/užitná-objem 5,13/4,37m²-11,8m³ Tloušťka rámů stěna/strop, zateplení 100/100mm nezatepleno Základová konstrukce betonová deska, ztracené bednění Vnější povrchy fasáda - prkna, krytina - folie Vnitřní povrchy stěny - prkna; podlaha - beton; strop - prkna/OSB
Náhledy listů





3D model stavby
3D model konstrukce