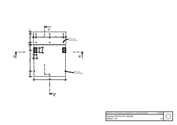
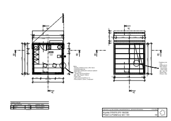
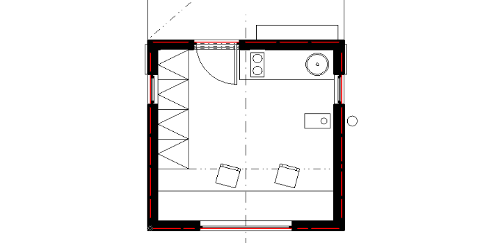
Krychle 375/335-375 150/200
Krychle o straně 3,75m se spacím patrem. Navržena jako chatička pro krátkodobý víkendový, nebo týdenní pobyt jednoho, nebo dvou lidí. Stavba může sloužit také jako zahradní pracovna, nebo do ní mohou být zároveň bezpečně umístěny včelí úly. Minimální objekt pro týdenní gampling.
Parametry stavby
Rozměry rámů šířka/výška-délka 375/335-375cm Plocha zastavěná/užitná-objem 14,8/18,7m²-58,4m³ Tloušťka rámů stěna/strop, zateplení 150/200mm Základová konstrukce betonové patky, ztracené bednění, vruty Vnější povrchy fasáda - prkenná, krytina - folie Vnitřní povrchy stěny - palubky; podlaha - OSB + lino; strop - palubky
Náhledy listů







3D model stavby
3D model konstrukce