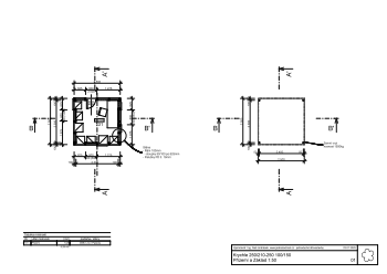
Krychle 250/210-250 100/150
Nejmenší krychle aby v ní mohl člověk vzpřímeně stát. Primární využití - umístění úlů mezi sloupky. Kce je nezateplená. Stavba lze snadno upravit a využít i k jinému účelu.
Parametry stavby
Rozměry rámů šířka/výška-délka 250/210-250cm Plocha zastavěná/užitná-objem 6,45/6,14m²-16,13m³ Tloušťka rámů stěna/strop, zateplení 100/150mm nezatepleno Základová konstrukce zakládací prahy, vruty Vnější povrchy fasáda - palubky, krytina - folie Vnitřní povrchy stěny - palubky; podlaha - OSB + lino; strop - OSB
Náhledy listů






3D model stavby
3D model konstrukce